大阪市西区・
浪速区幸町の売買物件を
ご紹介しています。
詳細情報
ストークマンション長堀
価格 4,180万円
物件情報
| 物件名 | ストークマンション長堀 | ||
| 所在地 |
大阪市西区新町4-17-7
地図
|
価格 | 4,180万円 |
| 交通 |
大阪メトロ千日前線 西長堀駅 徒歩4分
大阪メトロ長堀鶴見緑地線 西長堀駅 徒歩4分 |
||
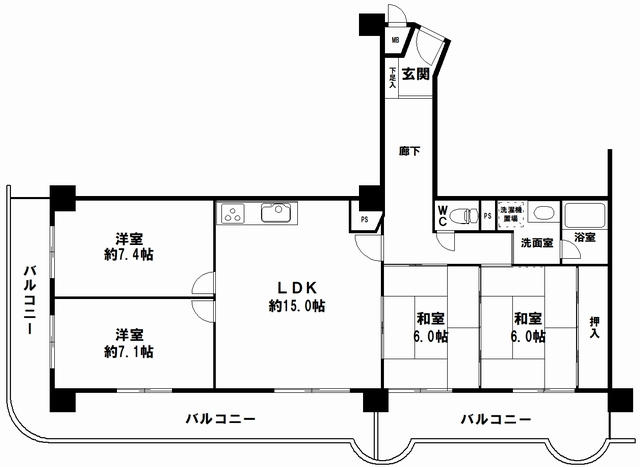
| 間取 | 4LDK | 専有面積 | 89.53m² |
| バルコニ面積 | 31.15m² | 方向 | 南・東 |
| 建物構造 | 鉄骨鉄筋コンクリート造 | 階/階建 | 10階/地上11階建 |
| 総戸数 | 42戸 | 築年月 | 1982/03 |
| 管理費 | 15,580円 | 修繕積立費 | 19,800円 |
| 現況 | 空家 | 学校区 | 堀江小学校/堀江中学校 |
| ポイント | コメント/周辺施設 | ★11階建て10階部分 3方角部屋 南・東向きバルコニー 2025年11月一部リフォーム済み★ ・阪急オアシス新町店4分 ・コンビニ2分 ・土佐公園3分 ・松島公園4分 ・日吉幼稚園10分 ・堀江小学校西学舎4分 ・堀江中学校13分 ・日本生命病院12分 ・徳島大正銀行6分 ・郵便局9分 ・西区役所4分 ・保健福祉センター4分 | |
更新情報
| 情報更新日 | 2025年11月15日 | 更新予定日 | 2025年11月16日 | 有効期限日 | 2025年11月29日 |
物件情報
| 物件名 | ストークマンション長堀 |
| 所在地 |
大阪市西区新町4-17-7
地図
|
| 価格 | 4,180万円 |
| 交通 |
大阪メトロ千日前線 西長堀駅 徒歩4分
大阪メトロ長堀鶴見緑地線 西長堀駅 徒歩4分 |
| 間取 | 4LDK |
| 専有面積 | 89.53m² |
| バルコニ面積 | 31.15m² |
| 方向 | 南・東 |
| 建物構造 | 鉄骨鉄筋コンクリート造 |
| 階/階建 | 10階/地上11階建 |
| 総戸数 | 42戸 |
| 築年月 | 1982/03 |
| 管理費 | 15,580円 |
| 修繕積立費 | 19,800円 |
| 現況 | 空家 |
| 学校区 | 堀江小学校/堀江中学校 |
| ポイント | |
| 紹介動画 | 紹介動画 |
| コメント/周辺施設 | ★11階建て10階部分 3方角部屋 南・東向きバルコニー 2025年11月一部リフォーム済み★ ・阪急オアシス新町店4分 ・コンビニ2分 ・土佐公園3分 ・松島公園4分 ・日吉幼稚園10分 ・堀江小学校西学舎4分 ・堀江中学校13分 ・日本生命病院12分 ・徳島大正銀行6分 ・郵便局9分 ・西区役所4分 ・保健福祉センター4分 |
更新情報
| 情報更新日 | 2025年11月15日 |
| 更新予定日 | 2025年11月16日 |
| 有効期限日 | 2025年11月29日 |
ローンシミュレーション例
| 返済期間 | 年 ← 編集可 | 金利 | % ← 編集可 |
| 借入金額 | 4,180 万円 | お支払い例 | 円/月 |
※シミュレーションでの結果は、あくまでも目安で、概算になります。
※毎回の返済額が開始から終了まで均等となる「元利均等返済」で算出しています。
※実際にローン契約をする際は、詳細を金融機関にご確認ください。
※このシミュレーションは、諸費用(仲介手数料、税金、ローン保証料など)が含まれておりません。
※金利は金融機関、ローン種別、借入期間などによって異なります。
※このシミュレーションは住宅用ローンですので、投資用ローンに関しては当社までお問い合せください。
※詳細なローン相談(無料)をご希望の方はメール・お電話で受け付けております。
周辺地図
紹介動画


0120-249-558